Jayco Business Park
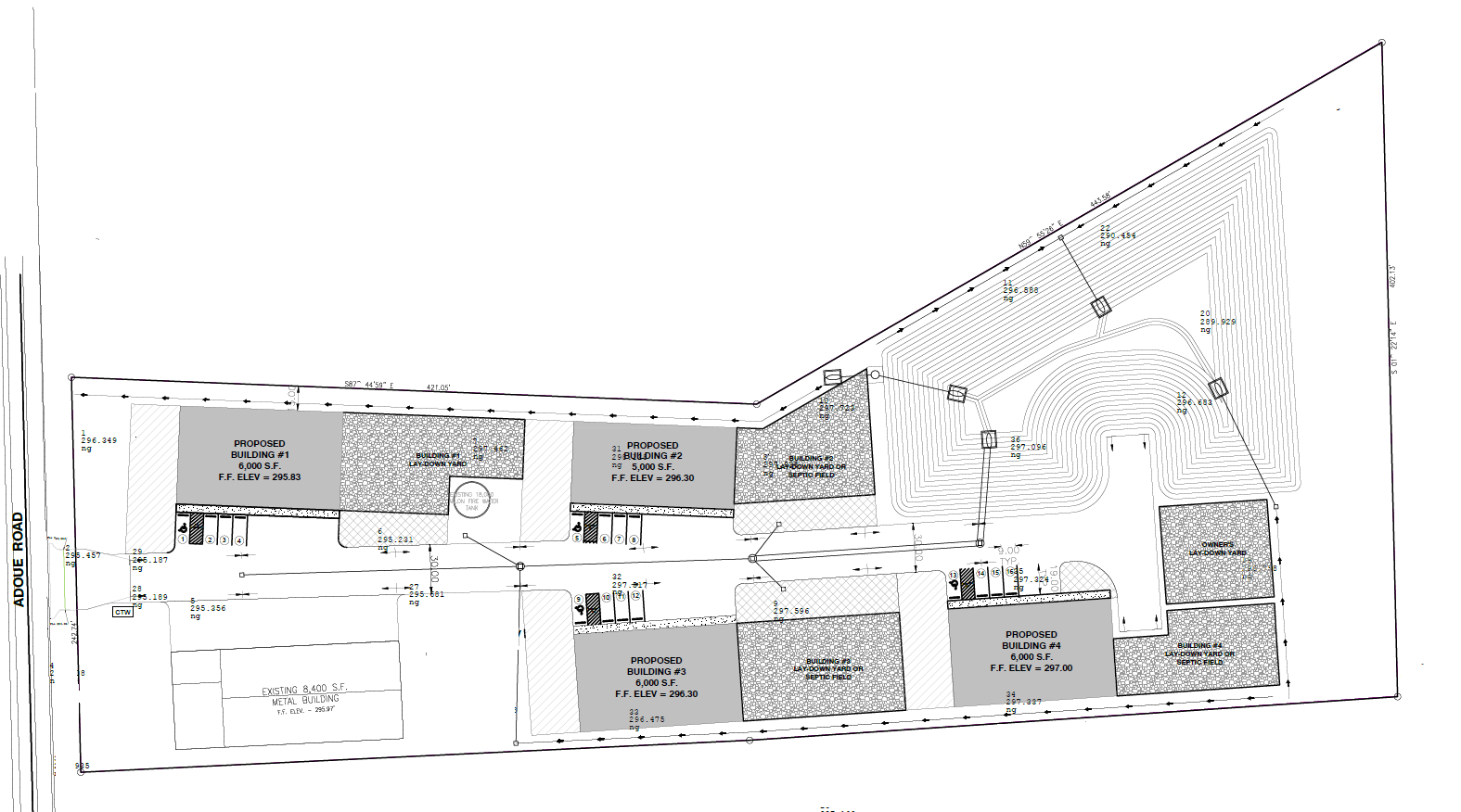
Now leasing at Montgomery's newest industrial park! Jayco Business Park offers 5,000–6,000 SF flex/industrial units with the ability to divide into smaller spaces. Each unit features 16'x14' overhead doors, 22' eave heights, 3-phase power, outside storage, and build-to-suit office space — everything your business needs to operate efficiently.
Located just off FM 2854 in the heart of a rapidly growing corridor, this park sits in the middle of booming residential development, making it an ideal location for contractors, distributors, and service-based businesses looking to be close to their customer base.
Asking Rate: $1.30/SF/Mo Base + $0.20/SF/Mo NNN
Located just off FM 2854 in the heart of a rapidly growing corridor, this park sits in the middle of booming residential development, making it an ideal location for contractors, distributors, and service-based businesses looking to be close to their customer base.
Asking Rate: $1.30/SF/Mo Base + $0.20/SF/Mo NNN
Request More Information
