7315 Five Forks Drive
Executive Summary
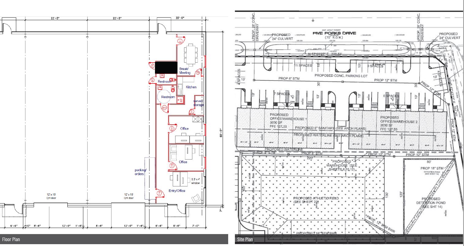
Property Overview:
9,000sqft building, 1,000sqft office, (4) 12’x16’ grade level doors, 18’ eave height, 3 phase power
For Sale: $1,600,000.00
Property Overview:
9,000sqft building, 1,000sqft office, (4) 12’x16’ grade level doors, 18’ eave height, 3 phase power
For Sale: $1,600,000.00
**Property Overview:**
**9,000sqft building, 1,000sqft office, (4) 12’x16’ grade level doors, 18’ eave height, 3 phase power**
**For Sale: $1,600,000.00**
**9,000sqft building, 1,000sqft office, (4) 12’x16’ grade level doors, 18’ eave height, 3 phase power**
**For Sale: $1,600,000.00**
Request More Information
