2,486 SF Medical Office - Sublease
Executive Summary
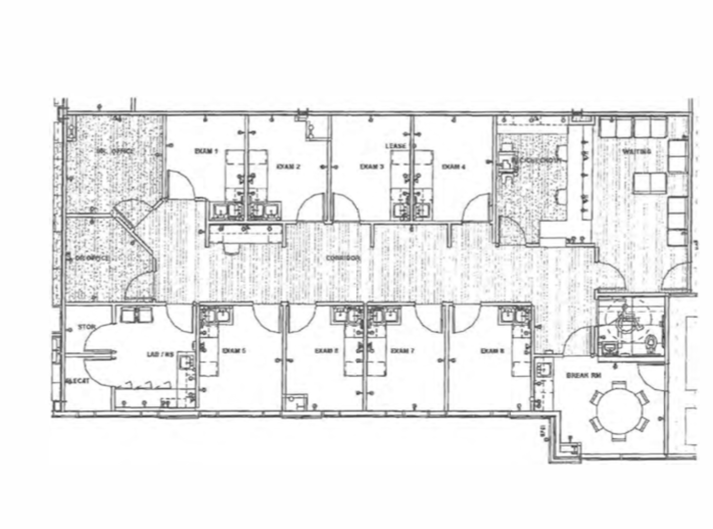
This well-equipped 1st-floor medical office suite, available for sublease, offers 2,486 SF of functional space in a convenient location just minutes from I-45. The suite features 8 exam rooms, 2 offices, a lab space with storage, and a break room, providing a comprehensive setup for various healthcare services. A comfortable waiting area is also included for patient convenience. The sublease includes furniture and medical equipment, allowing for a seamless transition. Contact the agents for pricing.
This well-equipped 1st-floor medical office suite, available for sublease, offers 2,486 SF of functional space in a convenient location just minutes from I-45. The suite features 8 exam rooms, 2 offices, a lab space with storage, and a break room, providing a comprehensive setup for various healthcare services. A comfortable waiting area is also included for patient convenience. The sublease includes furniture and medical equipment, allowing for a seamless transition. Contact the agents for pricing.
- 1st Floor Suite Available
- 8 Exam Rooms & 2 Offices
- Lab Space with Storage
- Break Room and Waiting Area
- Minutes from I-45
- Furniture & Medical Equipment Included
- 8 Exam Rooms & 2 Offices
- Lab Space with Storage
- Break Room and Waiting Area
- Minutes from I-45
- Furniture & Medical Equipment Included
Request More Information
