6,818 SF Commercial Opportunity
Executive Summary
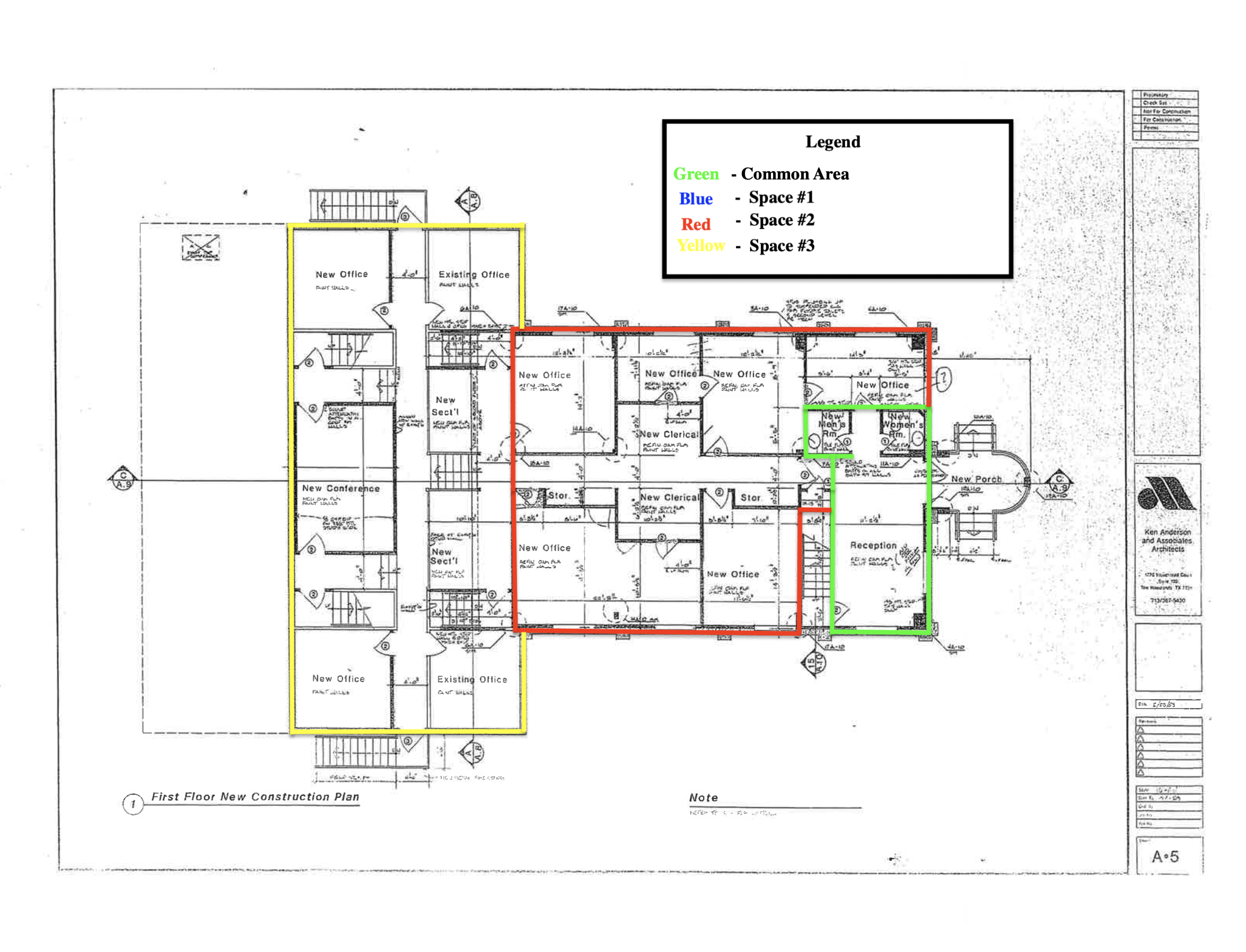
This offering presents a rare opportunity to acquire a fully renovated office building in the heart of Downtown Conroe, Texas — one of the fastest-growing cities in the United States. Strategically located in a designated Opportunity Zone, this asset offers both immediate usability and long-term investment advantages. The property consists of a 6,818 SF fully renovated office space completed in 2025, featuring 10 private offices, 2 conference rooms, 3 restrooms, and a modern break area with full kitchen. Enhancing the professional appeal, each office door has been upgraded with glass-paneled finishes. All restrooms have been modernized with new sinks, toilets, and fixtures. Not included in the primary square footage is an additional 1,500+ SF third-level attic space with HVAC and a solid concrete floor — ideal for future office expansion or climate-controlled storage. With 30 on-site parking spaces (5 per 1,000 SF), a 12’ slab-to-slab height, and a flexible zoning designation, the property is ideally suited for insurance agencies, accounting firms, law offices, business brokerages, or co-working operators looking to own a turnkey asset in a thriving market. Downtown Conroe is undergoing rapid revitalization with a strong municipal focus on preserving historic character while encouraging new business growth through mixed-use developments. As the county seat of Montgomery County and part of the Greater Houston MSA, Conroe offers a compelling mix of economic momentum, business incentives, and urban accessibility.
This offering presents a rare opportunity to acquire a fully renovated office building in the heart of Downtown Conroe, Texas — one of the fastest-growing cities in the United States. Strategically located in a designated Opportunity Zone, this asset offers both immediate usability and long-term investment advantages. The property consists of a 6,818 SF fully renovated office space completed in 2025, featuring 10 private offices, 2 conference rooms, 3 restrooms, and a modern break area with full kitchen. Enhancing the professional appeal, each office door has been upgraded with glass-paneled finishes. All restrooms have been modernized with new sinks, toilets, and fixtures. Not included in the primary square footage is an additional 1,500+ SF third-level attic space with HVAC and a solid concrete floor — ideal for future office expansion or climate-controlled storage. With 30 on-site parking spaces (5 per 1,000 SF), a 12’ slab-to-slab height, and a flexible zoning designation, the property is ideally suited for insurance agencies, accounting firms, law offices, business brokerages, or co-working operators looking to own a turnkey asset in a thriving market. Downtown Conroe is undergoing rapid revitalization with a strong municipal focus on preserving historic character while encouraging new business growth through mixed-use developments. As the county seat of Montgomery County and part of the Greater Houston MSA, Conroe offers a compelling mix of economic momentum, business incentives, and urban accessibility.
- **Building Size:** 6,818 SF total (6,000 SF + 1,500 SF attic)
- **Year Built / Renovated:** 1988 / 2025
- **Lot Size:** 0.33 Acres
- **Parking:** 30 striped spaces
- **Stories:** 2 + finished attic
- **Zoning:** None (flex use)
- **Location:** Downtown Conroe, in Opportunity Zone
- **Visibility:** Excellent frontage on main road
- **Layout:** 10 offices, 2 conference rooms
- **Amenities:** Renovated break room and kitchen
- **Extra Space:** Third floor can be used for office or storage
- **Upgrades:** New paint, carpet, and tile throughout
- **Year Built / Renovated:** 1988 / 2025
- **Lot Size:** 0.33 Acres
- **Parking:** 30 striped spaces
- **Stories:** 2 + finished attic
- **Zoning:** None (flex use)
- **Location:** Downtown Conroe, in Opportunity Zone
- **Visibility:** Excellent frontage on main road
- **Layout:** 10 offices, 2 conference rooms
- **Amenities:** Renovated break room and kitchen
- **Extra Space:** Third floor can be used for office or storage
- **Upgrades:** New paint, carpet, and tile throughout
Request More Information
